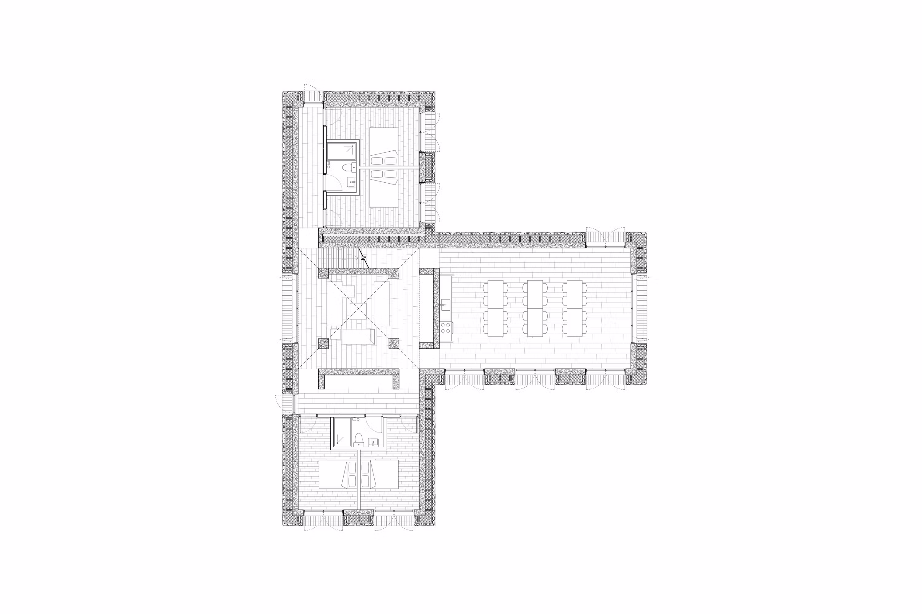
Inhabiting Qualities

A communal housing project in Arganda del Rey, outside Madrid, on a rural–industrial estate. Developed with locally sourced renewable materials, it uses passive design strategies for heating and cooling.

PROJECT DETAILS

Location:
Madrid, Spain
Affiliation:
Harvard University
Advisor:
Javier Garcia-German Trujeda
Year:
2025
Author:
Joe Russell
No items found.